概要及推荐理由
李辉
无
重庆市某兵工厂是全国重点文物保护单位,2011年委托某设计研究对旧址进行了详细、细致的勘察,并编写保护利用项目修缮设计方案。
一、兵工厂概况
重庆市某兵工厂座落在重庆市沙坪坝区歌乐山下、嘉陵江畔。厂区沿嘉陵江向南北方向延伸,南端抵磁器口刘家坟,北抵井口,南北长3.8 公里,东西宽0.35-1.4 公里,总面积4.02 平方千米。厂区地貌为小丘陵和小冲沟组成。老厂区和石井坡区生产车间海拔200-208 米,双碑及长春沟区生产车间海拔208-210 米,位于远祖桥的金加工车间海拔214 米。
该厂是西南地区最早建设的钢铁企业,1937 年投产,炼出了西南地区第一批电炉钢。抗战时期,该厂主要生产飞机炸弹、手榴弹、掷弹筒及轻武器,为坚持抗战作出过巨大贡献。该厂在抗战时期、国民经济恢复时期、三线建设时期等各个历史阶段为国家提供了大量优质钢材,在中国近代工业发展史上起着举足轻重的作用,其厂区内保存下的各个历史时期的厂房建筑,及各类机械设备是近现代中国钢铁工业发展历史的重要见证,具有较高的历史与文物价值。
二、文物构成
保护对象为全国重点文物保护单位,重庆抗战兵器工业遗址群中的一个文物点,其重点保护对象为两部分,一是兵工厂厂房保险楼、地下防空洞和设备柱文物建筑本体;二是文物所在的基本环境;保护范围面积3941.6 平方米,建设控制地带总面积1.05公顷。

1、厂房保险楼
保险楼原是兵工厂抗战时期的“轧钢车间”,因为抗战时期,是在厂房上方增加钢筋混凝土防空罩,上面有植被伪装,能欺骗日军空袭,减少损失,不中断生产,所以被取名为“保险楼”。
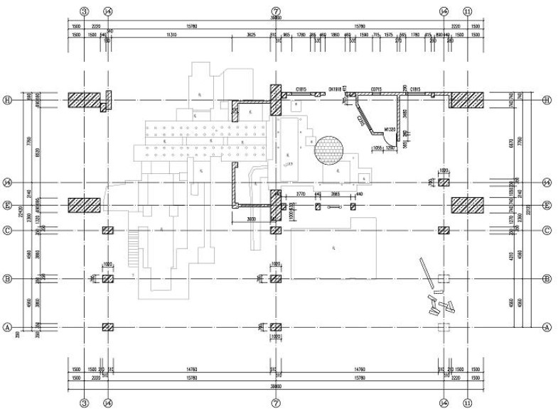
兵工厂现存一处钢筋混凝土保险楼厂房,面宽39 米,进深11.28 米,钢筋混凝土结构两层建筑,建筑通高14.34 米,建筑面积1229.92 平方米。
保险大楼平面呈一字型,方形体量。厂房保险楼为两层钢筋混凝土结构,一层底部为设备基础,设备基础纵向布置有直径约为160mm 的钢管。厂房保险楼平面尺寸长×宽约为39.0m×11.28m,一层净高约10m,二层净高约为3.36m。一层为6 颗矩形巨柱支撑二层相邻柱中心距约为18m,二层相邻柱中心距约为4.5m,E 轴柱与H 轴柱中心距约为9.9m。
厂房保险楼的一层柱为变截面柱,二层梁为吊车梁,二层柱为底部加腋的矩形柱,屋面主梁为竖向加腋的矩形梁,次梁为矩形梁。屋面为不上人屋面,屋面现覆盖为覆土,生长有绿色植被,覆土层厚度约为50cm~80cm。

保险楼一层平面

保险楼平面

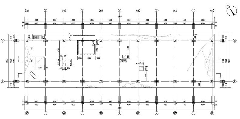
2、地下防空洞
地下防空洞位于厂房保险楼西北侧4.5 米处,整个防空洞由三个钢筋混凝土洞室组成,总宽20.27 米,进深19.42 米,净高7.07 米。抗战时期,防空洞主要是人员躲避日军轰炸的掩蔽场所。抗战后改为库房,职工服务场所。
本处防空洞与其他抗战兵工遗址的防空洞不同,它不具备生产功能。因为,兵工厂主要生产钢材原料,不生产兵器,设备都是大型设备,无法运进防空洞。防空洞的建设就是为了防空袭,没有考虑生产功能;其他兵工厂大部分依山挖洞,建设的目标就是把山洞作为生产场所。在防空洞上方原有钢筋混凝土防空罩,后来拆除。抗战后改为库房,职工服务场所。
地下防空洞由三个钢筋混凝土洞室组成,对各洞室自右向左依次按1#、2#、3#进行编号。防空洞内侧B 轴~D 轴为钢筋混凝土墙柱、梁板构成的空间结构,现场实测洞室室内净高约为4.5m~6.3m。1~2#防空洞洞顶现为覆土,1#防空洞洞顶现呈裸露状态,1#防空洞洞顶有2 个直径约为400mm 的气孔,气孔间距1m。地下防空洞的平立面图如下。

防空洞平面

防空洞内部与出入口
3、设备柱
设备柱应是保险楼(轧钢车间)旁边的附加建筑的“结构柱”。屋面是勾连搭形式,结构是木结构屋面,覆小青瓦。从老地图上看,兵工厂初建时期没有这个附属建筑,所建年代不详,从结构上看,应是1949 年前后厂房扩建后加建建筑物。
目前厂房前9 根石质设配柱及构架梁,石柱高7.14 米,横截面尺寸为0.7×1.02 米。6 根现存,3 根倒塌,石砌块散落周边。
设备柱由规则条石砌筑而成,条石规格约为380mm×1000mm×320mm。现存设备柱3排共计7 根,设备柱排距约为15.78m,相邻柱间距约为4.56m。设备柱旁1m 处有一水池,其尺寸约为8.0m(长)×4.8m(宽)×3.2m(深)。除下图中的7 根设备柱外,厂房保险楼内部,即距3、C 轴设备柱约3.9m 处有单根设备柱。7 根设备柱的平面布置图如下。

设备柱平面

沿街立面与现状内部
4、周边环境
文物建筑所在地的周边环境是文物的重要组成部分。

三、兵工厂的价值
1、历史价值重大
(1)重庆文脉:重庆的历史文化价值有两点:近代中国西部工业的发源地之一,中国近代革命史上的重镇。这两点在兵工厂遗址都有体现。
(2)西南地区最早建设的钢铁企业,且并非沿海內迁或战时新建工厂,在电力炼钢厂的基础上发展而来。参与发起创建重庆沙磁文化区,抗战时期有生产炸弹手榴弹、轻武器、提供优质钢等,为抗战做出巨大贡献。
(3)抗战时期,因地制宜建立山洞厂房,修建防空保险楼,当日本飞机对重庆进行“疲劳轰炸”时,重庆成了火海废墟,但是在保险楼厂房以及地下防空洞里,兵工工人不分昼夜进行生产,武器弹药源源不断运往抗日前线,是中国人民抗日战争的见证,也是中国人民不屈的抗日精神的见证。

2、科学技术价值明显
(1)如今遗址厂房的生产工艺已不复存在,但遗址本身的科学价值也很高,是研究上世纪工业建筑形态的重要凭证。
(2)防空保险楼采用类似于桥梁的钢筋混凝土结构,整个建筑布置紧凑简洁,高大牢固,在抗战中经过日机轰炸及风雨侵蚀,结构依然安全稳定,为后人研究建筑结构提供了参考和研究依据。
(3)保险楼和防空洞的规划设计遵循平战结合的原则,有着完善的防御体系,通过地上与地下通道的连接便于战争发生时可快速疏散转移。
3、艺术审美价值独特
(1)文化景观艺术:保留的设备柱、现存时代标语、地下暴露的工业遗迹等,它们是历史的印记,是城市记忆的体现,无论在文化还是造型上都具有独特性和无法复制性,具有较强的观赏价值。
(2)建筑造型独特,建筑比例匀称,厂房保险楼不同于一般的大跨工业厂房遗产,其在结构和材料上接近现代建筑,厂房保险楼设计科学坚固,具有秩序感,防空洞空间环境独特,可形成良好的空间氛围。
4、社会文化价值凸显
(2)兵工厂遗址是重庆乃至全国重要的爱国主义教育基地之一,是重庆红色旅游的重要组成部分,承担着纪念先烈、教育人民、传扬不屈的抗日精神的伟大使命。
(2)军工业伴随着重庆几十年的发展,是城市的记忆和市民情感的寄托,体现了极强的社会效应。
(3)军工厂对当时社会的贡献,以及流传下来的企业文化、企业精神、企业理念等。企业文化的形成,有利于振奋民族精神、传承产业工人的优秀品德。
5、经济利用价值上升
(1)良好区位优势,周边住宅和学校配套服务,为商业休闲娱乐的发展创造了条件。遗址周边地段开发,使周边地段经济价值升高,周边人气将提升;
(2)由于保留抗战革命时期的建筑物较少,保留的厂房保险楼便具有更大的稀缺性:且厂房保险楼和防空洞都具有独的建筑特色与美感,可开发性大;
(3)依托磁器口进一步发展民俗旅游文化和文化创意产业。
(4)依托重庆大学城时尚文化,构建区校文化活动发展平台。
6、旅游价值连线
(1)重庆的近现代工业遗产,特别是抗战、三线工业遗产的主体,具有稀缺性和独特性,通过深入研究、广泛宣传,很好地挖掘其旅游价值;周边旅游景点较多,如磁器口、红岩联线景区等,采取发展工业遗产旅游专线或将其与本地其他旅游资源相结合,可以取得广阔的发展前景。
四、保护区划
1、现状土地利用规划
上位规划中将兵工署核心保护范围线外的区域,规划成居住用地及商业服务业设施用地。

2、保护区划
(1)保护范围边界
保护区范围:东、西、北三个方向以文物本体(保险楼、防空洞、设备柱)各外点向外延伸9 米为界,南侧以市政道路中心线为界,总面积为3941 平方米。
(2)建控地带边界
东至规划市政道路边线;南至规划市政道路边线;西至保护范围线外移40 米;北至保护范围线外移40 米;建设控制地带面积为10500 平方米。

五、修缮设计方案
1、设计策略

2、功能引导与策划

3、改造利用方案
(1)功能分区
屋顶 重庆森林 屋顶花园 突出建筑本身特点,塑造独特文化名片
三层 共享未来 共享盒子 设置为较自由的共享盒子空间,满足小范围人群多种需求,
二层 融入当下 社区活动中心 设置多种社区文化活动空间,是历史与现代的交流场所
一层 留住记忆 记忆展示主阵地 围绕建筑主体与坑道设置不同展陈方式及空间体验
(2)立面造型设计
充分尊重兵工厂现状立面,抓住厂房保险楼屋顶种植与厚重混凝土框架的特点,新加入的外墙立面主要采用玻璃与钢结构。采用虚实结合的方式,使改造后的整体造型稳重又不失活力、厚重又不失轻盈。新增建筑墙体为钢结构,满足文物保护可逆性原则。玻璃幕墙龙骨与主体结构之间为铰接,方便移除。

(3)坑道改造利用展示




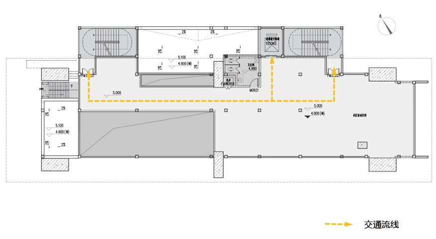
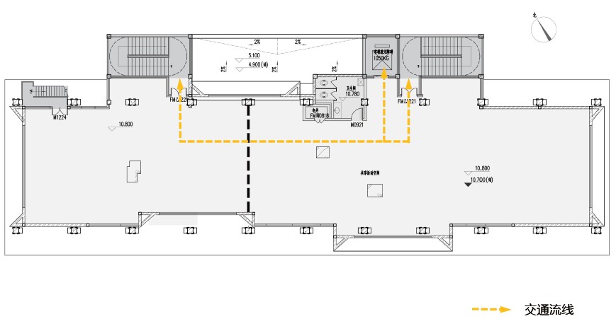
(4)平面图

一层平面图

二层平面图

三层平面图
4、设计效果图

整体鸟瞰图

次立面效果图

一层展览室内效果图

二层挑高室内效果图

二层社区活动空间室内效果图

三层室内活动空间效果图
5、总平面图

6、面积指标

六、合作方式
对外出租,租金面议。
| 有无电梯: | 无电梯 |
| 装修程度: | 简装修 |
| 交通情况: | 临近公交站点 |
| 合作方式: | 整体出租 |
| 楼层: | 低 |
| 规划用途: | 工业 |
| 月租金: | 面议 |
| 面积: | 10500.00平方米 |
| 标准层高: | 面议 |
| 车位个数: | 面议 |
推荐项目